Informace o ceně na dotaz
Včera
Smíšená
Po rekonstrukci
Osobní
4. podlaží z celkem 4
43 m2
39 m2
43 m2
4 m2
Ano
Silnice
2215744332
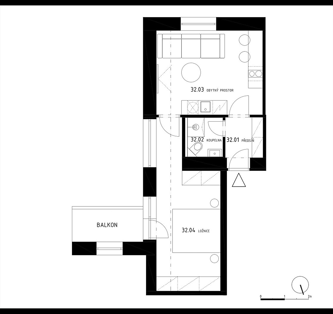
Základní informace o apartmánu<br />- Dispozice 2+kk ve stavu FIT OUT<br />- Podlahová plocha 38,9 m² a celková plocha 43,3 m²<br />- Balkon o velikosti 4,4 m²<br />- Nachází se ve 3. podlaží<br />- Orientace na jih a západ<br /><br />V jakém stavu je byt<br />- Jednotka ve stavu FIT OUT nabízí nové parkety i omítky, nové interiérové i vchodové dveře a kompletní nové rozvody<br />- Jednotka včetně koupelny se vybavuje dle uvedených standardů<br /><br />Dům po rekonstrukci<br />- Nové vstupní vchodové dveře i dveře do jednotek, schránky<br />- Zrenovovaná fasáda, chodby i schodiště<br />- Společná kolárna/lyžárna pro úschovu sportovního vybavení<br />- Sluneční terasa s grilem<br /><br />Kouzelné výhledy a sjezdovka za rohem<br />- Přímý přístup ke sjezdovkám <br />- Nejlepší turistické i cyklistické trasy rovnou u domu<br />- Bobová dráha v dochozí vzdálenosti<br /><br />Dokonalé zázemí s horskou atmosférou<br />- Kvalitní kavárny a restaurace, útulné bary<br />- Wellness, aquacentrum i plavecký bazén pro veřejnost jen pár minut od domu<br />- Obchody, lékařská péče, půjčovny i prodejny sportovního vybavení<br />- Pestrý kalendář kulturních a sportovních akcí
Aktuální kurz

Máte zájem o tento byt? Nechte nám Vás požadavek. Naše operátoři v nejkratší době zodpoví Vase dotazy