14 600 CZK за месяц
16000,0 CZK
+ služby 2224,-Kč/1 osoba
Сегодня
86331980
Панель
Отличное
Личная
Окраина муниципального образования
1. этаж из Итого 4
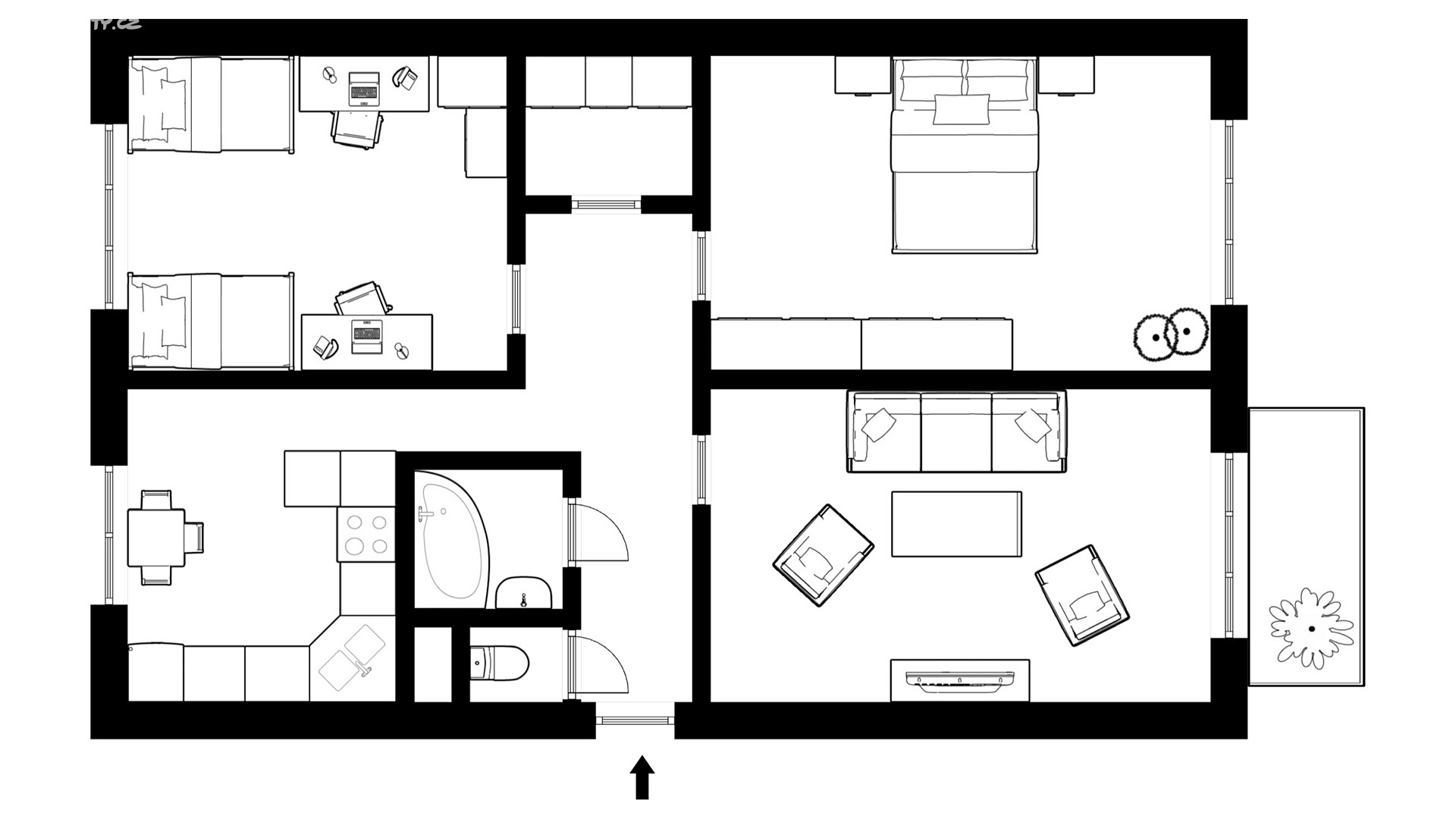
80 m2
2 m2
Немедленно
Интернет Кабельное телевидение
Шоссе Дорога Городской общественный транспорт Автобус
Частично
86331980
Актуальный курс валют

Заинтересовала квартира? Оставьте нам Вашу заявку. Наши операторы ответят на все Ваши вопросы в кратчайшие сроки.